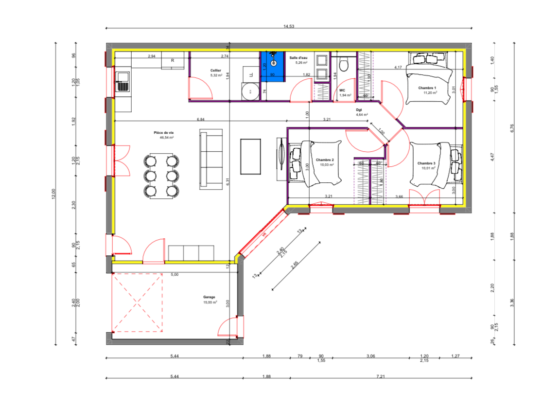
Modèle 95 L 3 – Une maison moderne et fonctionnelle

Découvrez le Modèle 95 L 3, une maison de 95 m² pensée pour allier confort et praticité. Avec ses trois chambres, sa pièce de vie lumineuse comprenant une cuisine ouverte sur le salon/séjour, un cellier pouvant servir de buanderie et d’arrière cuisine, ainsi que sa salle d’eau et WC séparés, ce modèle est idéal pour une famille.
Son garage intégré offre un espace de rangement supplémentaire. Grâce à ses grandes ouvertures, la maison bénéficie d’une belle luminosité et d’un accès direct au jardin.
Un design moderne et fonctionnel, parfait pour une famille !

Surface habitable : 95 m²
Garage : 15 m²
3 chambres
1 salle d’eau
1 WC
Espaces de vie :
• Pièce de vie (46,54 m²) : Une pièce de vie spacieuse intégrant un salon, une salle à manger et une cuisine ouverte pour un espace convivial et lumineux.
• Accès direct à la terrasse et au jardin grâce à une grande baie vitrée.
Espace nuit :
• Chambre 1 (11,20 m²) : Donne sur le jardin, idéale pour une suite parentale.
• Chambre 2 (10,03 m²) : Située sur le coté jardin de la maison, parfaite pour un enfant ou un bureau.
• Chambre 3 (10,01 m²) : Spacieuse et lumineuse, elle dispose d’un accès direct au jardin.
Salle d’eau & WC :
• Salle d’eau (5,26 m²) : Moderne avec une douche et un meuble double vasques.
• WC indépendant (1,94 m²) : Séparé pour plus de confort au quotidien.
Garage et annexes :
• Garage (15 m²) : Accès direct à la maison ou au jardin, espace pour un véhicule et rangement.
Extérieur :
• Terrasse et jardin privatif : Accessible depuis la pièce de vie, la chambre 3 et le garage.
Ce modèle combine modernité, confort et fonctionnalité, tout en maximisant la luminosité et l’optimisation des espaces.
Les atouts du modèle 80 L 3 :
• Optimisation des espaces : une surface bien agencée sans perte d’espace.
• Pièce de vie lumineuse : grande baie vitrée pour un apport maximal de lumière naturelle.
• Trois chambres fonctionnelles : adaptées à une famille, avec placards intégrés pour un rangement optimisé.
• Construction en L : favorise une meilleure séparation entre l’espace jour et l’espace nuit.
• Garage attenant : accès direct à la maison ou au jardin, idéal pour le stationnement et le rangement.



