Modèle 90 C 3 – Une maison fonctionnelle et optimisée

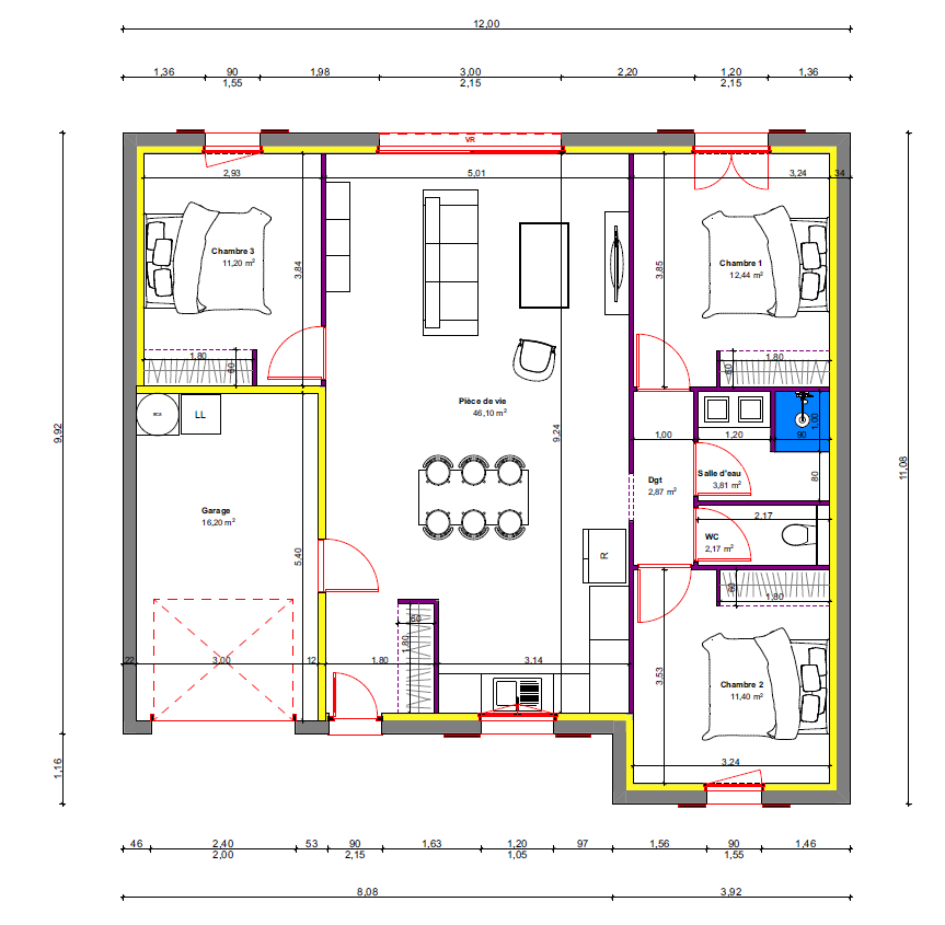
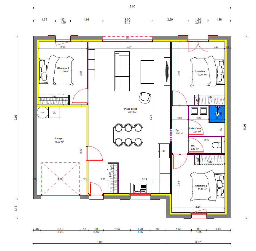
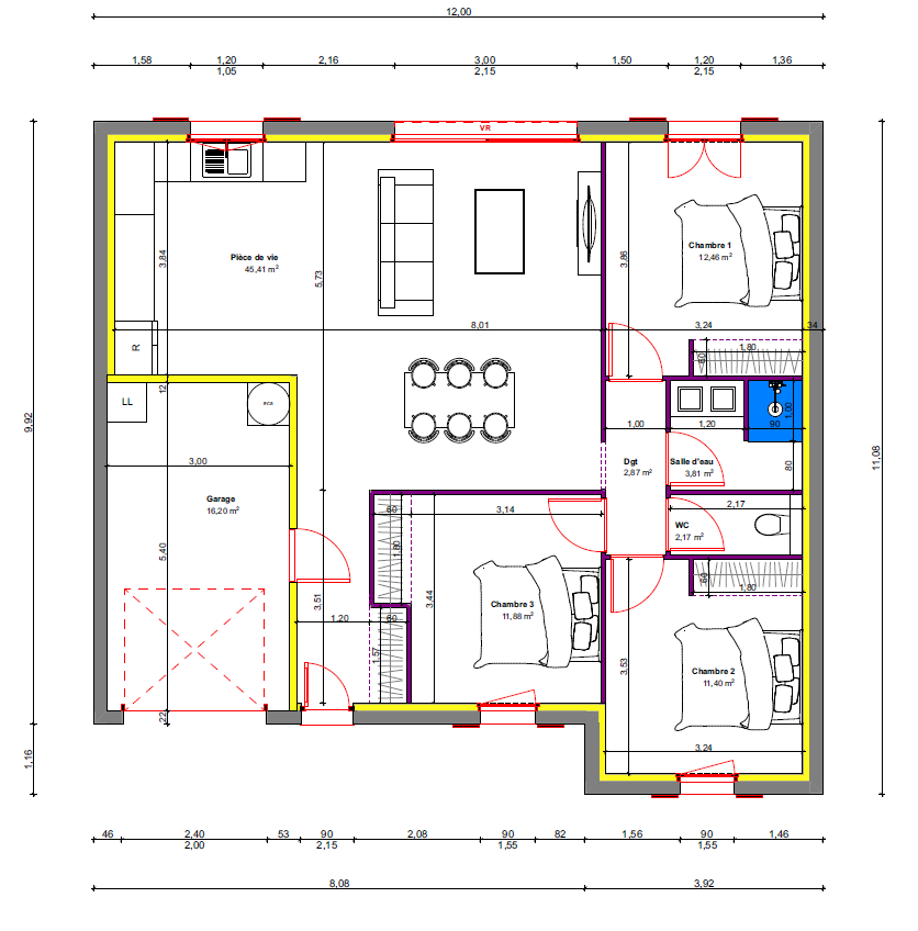
Découvrez le modèle 90 C 3, une maison de plain-pied pensée pour allier confort et praticité. Avec 90 m² habitables, ce modèle offre un agencement optimisé pour répondre aux besoins d’une famille ou d’un couple souhaitant un espace bien réparti.
L’espace de vie principal, d’une superficie de plus de 45 m², intègre une cuisine ouverte sur un séjour lumineux grâce à de larges ouvertures vers l’extérieur. Ce volume généreux favorise la convivialité et la fluidité des déplacements au quotidien.
Côté nuit, la maison dispose de trois chambres confortables, chacune offrant un espace agréable et fonctionnel. Une salle d’eau moderne, équipée d’une douche, complète cet espace ainsi qu’un WC indépendant.
Le modèle 90 C 3 inclut également un garage de plus de 16 m², apportant un espace supplémentaire pour le stationnement ou le rangement.

Surface habitable : 90 m²
Garage : 16,2 m²
3 chambres
1 salle d’eau
1 WC
Espaces de vie :
• Pièce de vie (46,10 m²) : Un espace ouvert et lumineux, intégrant un salon, une salle à manger et une cuisine fonctionnelle. Grande baie vitrée donnant sur l’extérieur.
Espace nuit :
• Chambre 1 (12,44 m²) : Donne sur le jardin, parfaite pour un enfant ou une chambre d’amis.
• Chambre 2 (11,40 m²) : Située à l’avant de la maison, idéale pour une suite parentale ou un bureau.
• Chambre 3 (11,20 m²) : Spacieuse et lumineuse, proche du salon.
Salle d’eau & WC :
• Salle d’eau (3,81 m²) : Moderne avec une douche et un meuble vasque.
• WC indépendant (2,17 m²) : Séparé pour plus de confort au quotidien.
Garage et annexes :
• Garage (16,20 m²) : Accès direct à la maison, espace pour un véhicule et rangement.
Extérieur :
• Terrasse et jardin privatif : Accessible depuis la pièce de vie et la chambre 1.
Un modèle pensé pour offrir un équilibre parfait entre confort, fonctionnalité et optimisation des espaces !
Les atouts du modèle 90 C 3 :
• Un agencement optimisé avec une belle pièce de vie ouverte.
• Trois chambres bien dimensionnées pour accueillir famille et invités.
• Un garage intégré pour plus de praticité.
• Une architecture élégante et intemporelle, avec des finitions de qualité et un extérieur personnalisable selon vos envies.
• Un excellent rapport qualité/prix, idéal pour une première acquisition ou un investissement.






