Modèle 80 L 3 – Une maison moderne et fonctionnelle

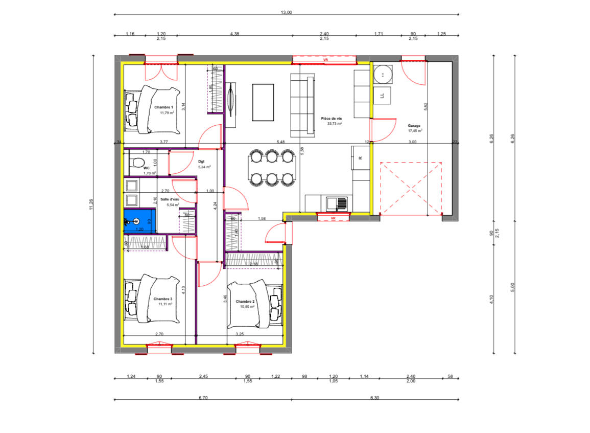
Découvrez le Modèle 80 L 3, une maison de 80 m² pensée pour allier confort et praticité. Avec ses trois chambres, sa pièce de vie lumineuse comprenant une cuisine ouverte sur le salon/séjour, ainsi que sa salle d’eau et WC séparés, ce modèle est idéal pour une famille.
Son garage intégré offre un espace de rangement supplémentaire. Grâce à ses grandes ouvertures, la maison bénéficie d’une belle luminosité et d’un accès direct au jardin.
Un design moderne et fonctionnel, parfait pour un premier achat ou un investissement locatif !

Surface habitable : 80 m²
Garage : 17,45 m²
3 chambres
1 salle d’eau
1 WC
Espaces de vie :
• Pièce de vie (33,73 m²) : Une pièce de vie spacieuse intégrant un salon, une salle à manger et une cuisine ouverte pour un espace convivial et lumineux.
• Accès direct à la terrasse et au jardin grâce à une grande baie vitrée.
Espace nuit :
• Chambre 1 (11,79 m²) : Donne sur le jardin, idéale pour une suite parentale.
• Chambre 2 (10,90 m²) : Située à l’avant de la maison, parfaite pour un enfant ou un bureau.
• Chambre 3 (11,11 m²) : Spacieuse et lumineuse, elle est aussi située à l’avant de la maison.
Salle d’eau & WC :
• Salle d’eau (5,54 m²) : Moderne avec une douche et un meuble double vasques.
• WC indépendant (1,70 m²) : Séparé pour plus de confort au quotidien.
Garage et annexes :
• Garage (17,45 m²) : Accès direct à la maison, espace pour un véhicule et rangement.
Extérieur :
• Terrasse et jardin privatif : Accessible depuis la pièce de vie, la chambre 1 et le garage.
Ce modèle combine modernité, confort et fonctionnalité, tout en maximisant la luminosité et l’optimisation des espaces.
Les atouts du modèle 80 L 3 :
• Optimisation des espaces : une surface bien agencée sans perte d’espace.
• Pièce de vie lumineuse : grande baie vitrée pour un apport maximal de lumière naturelle.
• Trois chambres fonctionnelles : adaptées à une famille, avec placards intégrés pour un rangement optimisé.
• Construction en L : favorise une meilleure séparation entre l’espace jour et l’espace nuit.
• Garage attenant : accès direct à la maison, idéal pour le stationnement et le rangement.



