Modèle 75 R 2 – Maison de 75 m² avec garage

Le modèle 75 R 2 est une maison de plain-pied compacte et fonctionnelle, idéale pour une première acquisition ou un investissement locatif. Son agencement optimisé offre un espace de vie agréable et lumineux, tout en assurant une séparation harmonieuse entre les espaces jour et nuit.

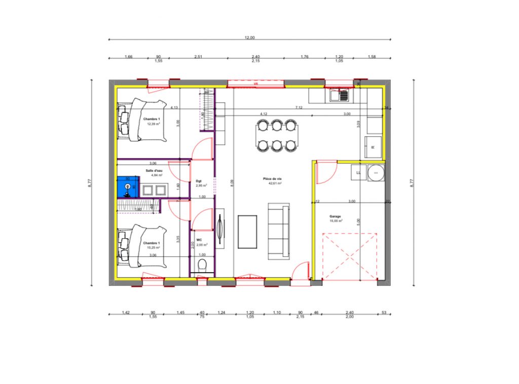
Descriptif du plan :
• Superficie habitable : 75 m²
• Garage : 15 m²
Disposition :
• Une pièce de vie de 42,51 m² intégrant salon, salle à manger et cuisine ouverte.
• Deux chambres de 12,39 m² et 11,25 m², chacune équipée d’un espace de rangement.
• Une salle d’eau de 4,94 m² avec douche et vasque.
• Un WC indépendant.
• Un garage attenant avec accès direct à la maison.
Extérieur : Terrasse et jardin avec des ouvertures optimisées pour une belle luminosité.
Ce modèle combine praticité et esthétisme dans un format accessible, parfait pour un projet de vie confortable et abordable.
Les atouts du modèle 75 R 2 :
• Maison compacte et optimisée : idéale pour un jeune couple ou un investissement locatif.
• Grande pièce de vie lumineuse : 42,51 m² avec cuisine ouverte pour plus de convivialité.
• Garage intégré : accès pratique et espace de rangement supplémentaire.
• Construction moderne et personnalisable : possibilité d’adapter les finitions selon vos envies.
• Conception fonctionnelle : espaces bien pensés avec un excellent rapport surface/prix.



