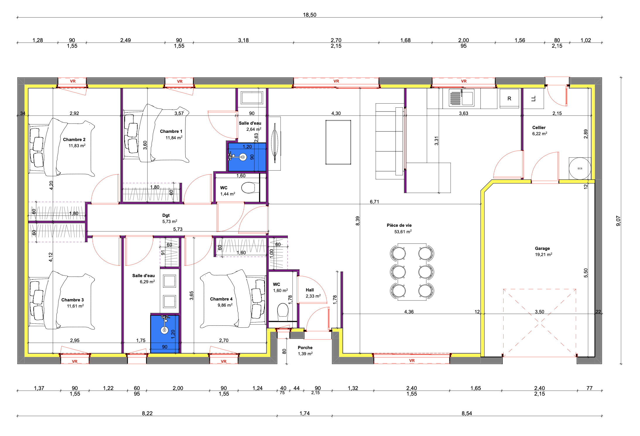
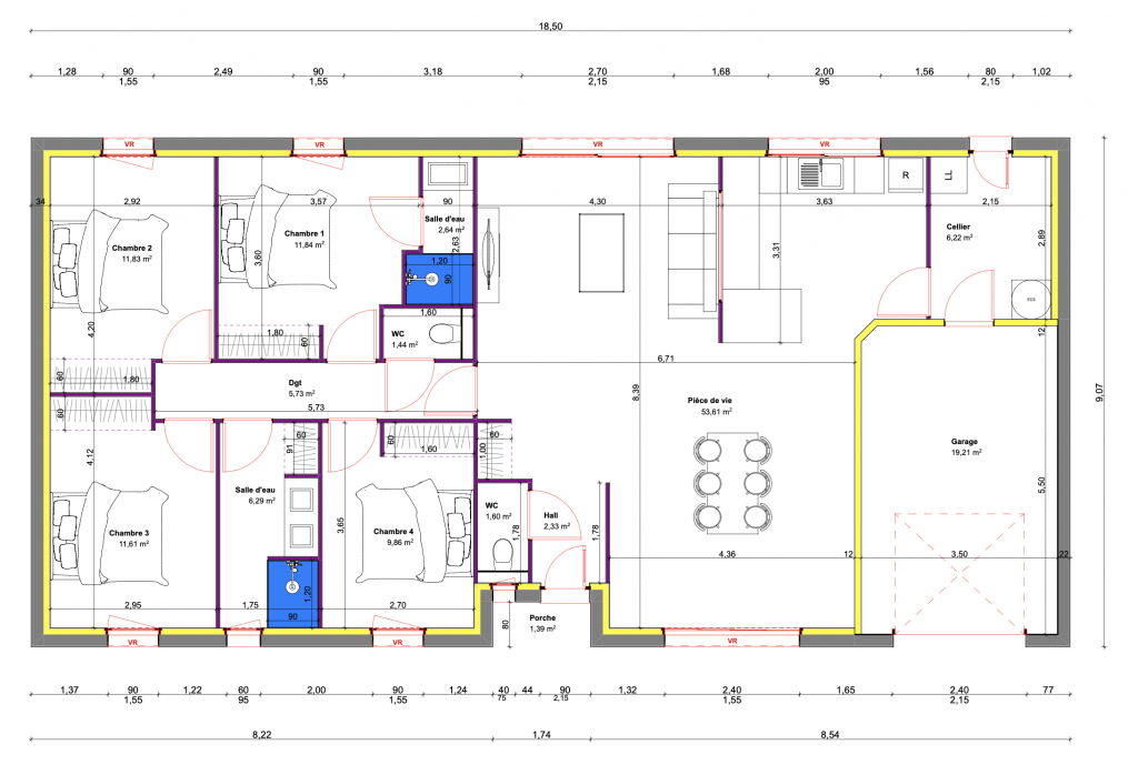
Modèle 125 R 4 – Une maison spacieuse et conviviale

Le modèle 125 R 4 offre une surface habitable de 125 m², pensée pour accueillir les familles avec tout le confort moderne. Avec ses 4 chambres, ses deux salles d’eau et son garage spacieux, cette maison allie fonctionnalité et design contemporain.

Surface habitable : 125 m²
Garage : 19,21 m²
4 chambres
2 salles d’eau
2 WC
Espaces de vie :
Un espace de vie généreux :
La pièce de vie de 53,61 m² est le cœur de la maison, regroupant un salon, une salle à manger et une cuisine ouverte. Lumineuse grâce à ses grandes ouvertures, elle est idéale pour partager des moments conviviaux en famille ou entre amis.
Un coin nuit confortable et bien agencé :
4 chambres :
• Chambre 1 : 11,84 m², la suite parentale idéale.
• Chambre 2 : 11,83 m².
• Chambre 3 : 11,61 m².
• Chambre 4 : 9,86 m², parfaite pour un bureau ou une chambre d’amis.
Deux salles d’eau modernes :
• Une première salle d’eau de 6,29 m² avec douche et double vasque.
• Une seconde salle d’eau de 2,64 m² donnant dans la chambre 1.
• Deux WC séparés, pratiques pour le quotidien.
Un espace pratique et un garage intégré :
• Un cellier de 6,22 m², idéal pour le rangement et la buanderie.
• Un garage de 19,21 m², offrant un espace de stationnement ou de stockage supplémentaire.
Les atouts du modèle 125 R 4 :
• 4 chambres pour accueillir confortablement toute la famille.
• Double salle d’eau pour une utilisation optimale des espaces.
• Un garage intégré pour plus de praticité.
• Grande pièce de vie lumineuse, parfaite pour la convivialité.
• Garage spacieux et cellier pour plus de praticité.
• Plan optimisé, alliant modernité et fonctionnalité.
Le modèle 125 R 4 est une maison idéale pour les familles en quête d’espace et de confort, dans un cadre de vie à la fois pratique et chaleureux.



