Modèle 125 L 4 – Élégance et confort pour toute la famille

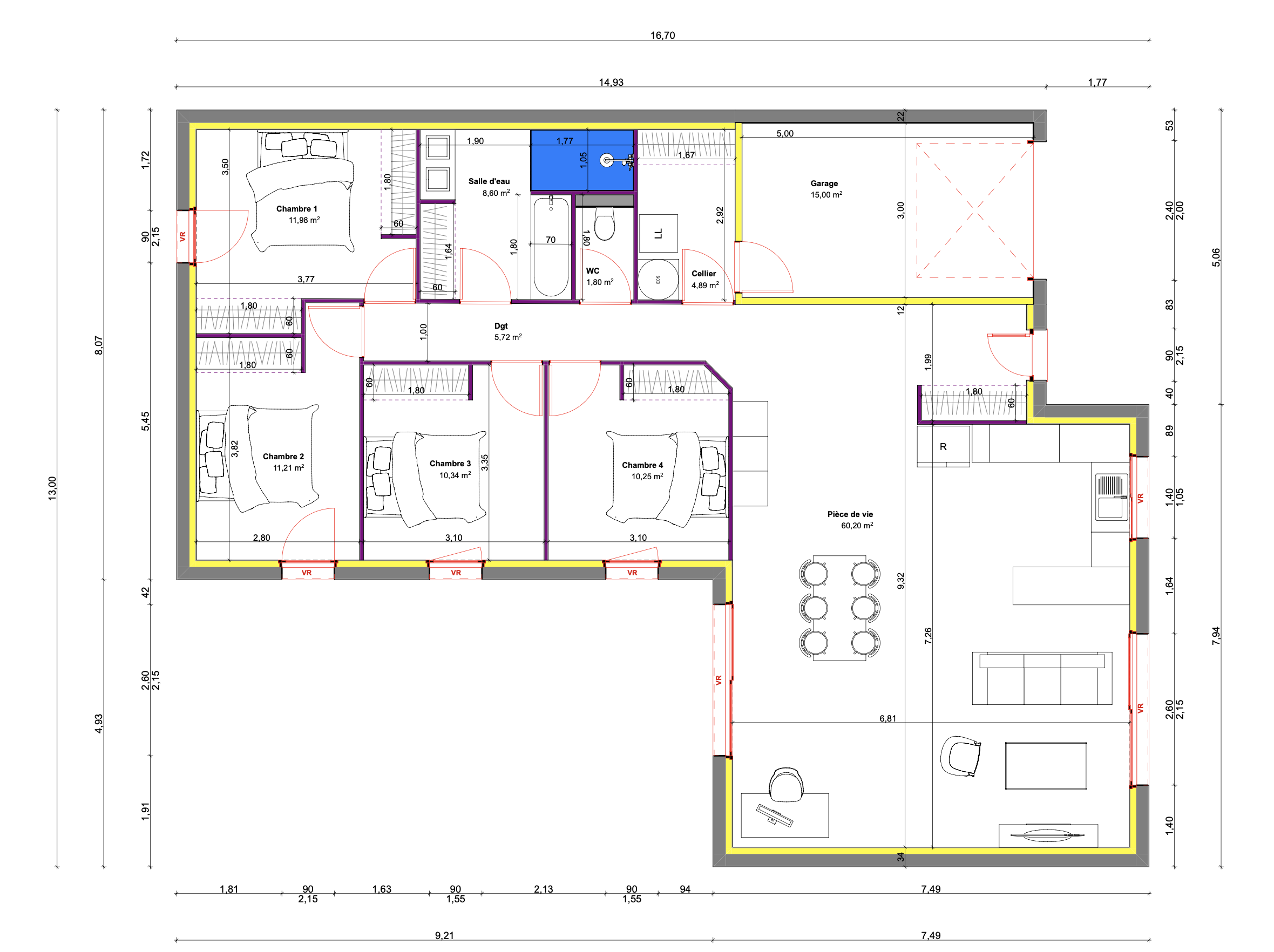
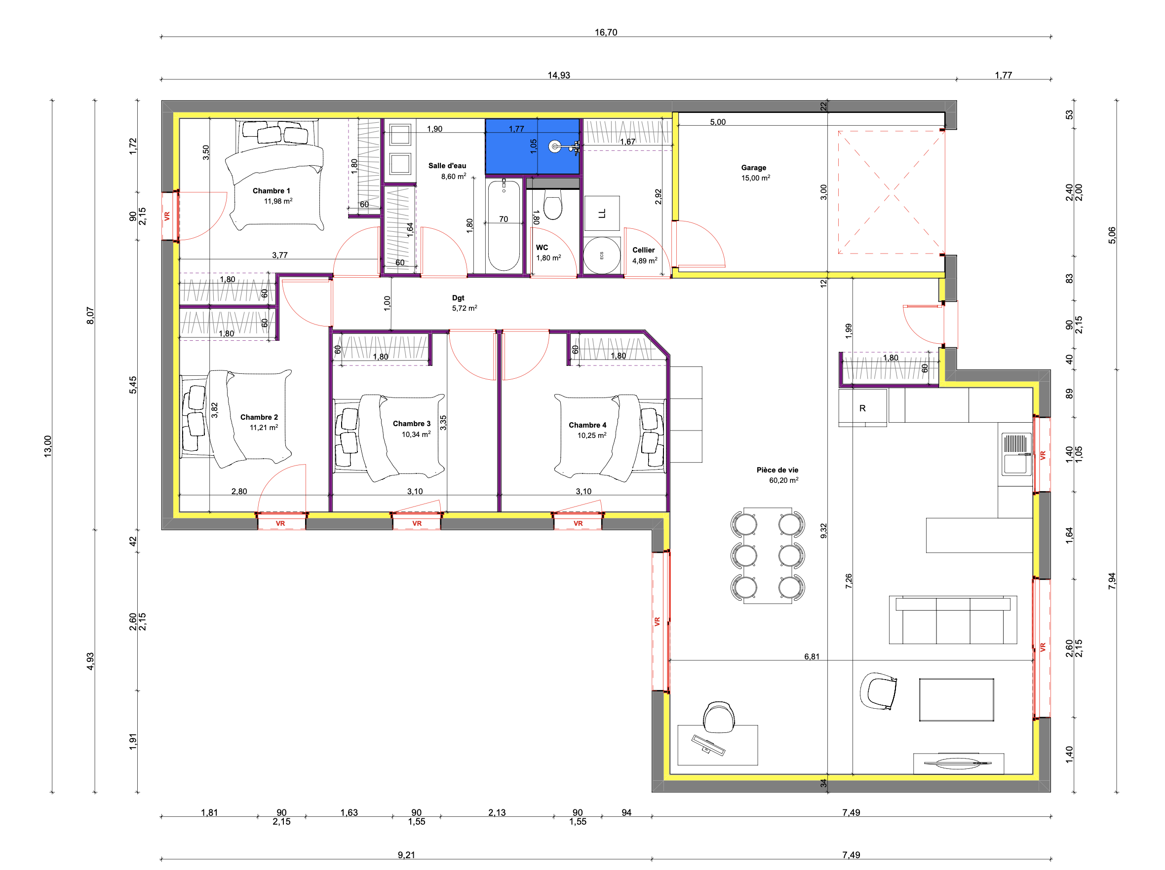
Découvrez le modèle 125 L 4, une maison moderne et spacieuse de plain-pied, idéale pour les familles nombreuses. Avec ses 4 chambres confortables et sa grande pièce de vie de plus de 60 m², ce modèle allie fonctionnalité et convivialité. Son garage intégré de 15 m² et son cellier attenant apportent un espace de rangement pratique au quotidien. Profitez d’une salle d’eau spacieuse et d’un design extérieur élégant qui s’intègre parfaitement dans tout environnement.

Description des espaces :
Un espace de vie lumineux :
La pièce de vie de 60,20 m² est l’atout majeur de cette maison. Son agencement ouvert et ses baies vitrées offrent une belle luminosité et un accès direct à l’extérieur.
• Une cuisine ouverte et fonctionnelle :
L’espace cuisine est aménagé pour répondre aux besoins des amateurs de gastronomie tout en restant convivial.
Un coin nuit bien pensé :
• 4 chambres confortables :
• Chambre 1 : 11,98 m².
• Chambre 2 : 11,21 m².
• Chambre 3 : 10,34 m².
• Chambre 4 : 10,25 m².
• Une salle d’eau de 8,60 m², équipée d’une double vasque et d’une douche.
• WC séparé, pour plus de praticité au quotidien.
• Des espaces pratiques :
• Un cellier de 4,89 m², parfait pour optimiser le rangement.
• Un garage de 15 m², permettant d’abriter un véhicule ou de servir de zone de stockage.
Les atouts du modèle 125 L 4 :
• Une maison spacieuse de 125 m², idéale pour les familles.
• 4 chambres, pour accueillir toute la famille et vos invités.
• Grand espace de vie lumineux, au design ouvert et convivial.
• Garage intégré et cellier, pour un rangement optimal.
• Plan optimisé, alliant esthétisme et fonctionnalité.
Avec son architecture moderne et ses espaces bien pensés, le modèle 125 L 4 offre tout le confort nécessaire pour une vie de famille harmonieuse.



