Modèle 120 L 4 – Une maison familiale spacieuse et moderne

Le modèle 120 L 4 offre une surface habitable de 120 m², parfaitement adaptée aux familles en quête d’espace et de confort. Avec ses 4 chambres, sa grande pièce de vie lumineuse et son garage intégré, cette maison est idéale pour concilier fonctionnalité et modernité.

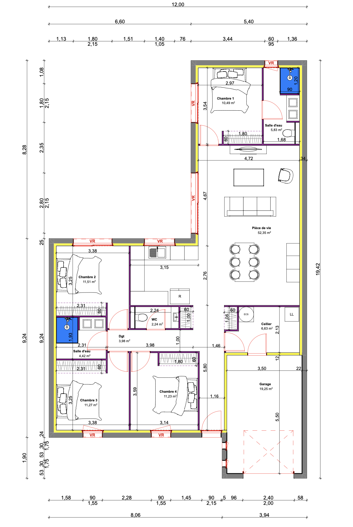
Description des espaces :
Une grande pièce de vie conviviale :
La pièce de vie de 52,35 m² regroupe un salon, une salle à manger et une cuisine ouverte. Lumineuse grâce à ses larges baies vitrées, elle s’ouvre directement sur une terrasse et un jardin, pour une harmonie parfaite entre intérieur et extérieur.
Un coin nuit bien pensé :
4 chambres spacieuses, idéales pour une famille :
• Chambre 1 : 10,49 m², une suite parentale parfaite, située dans une aile indépendante pour plus de tranquillité, avec une salle d’eau de 5,83 m² avec baignoire, WC et double vasque.
• Chambres 2, 3 et 4 : respectivement 11,51 m², 11,27 m² et 11,23 m², toutes équipées d’espaces de rangement intégrés.
• Une salle d’eau de 5,01 m² avec douche et double vasque.
• Un WC séparé de 2,24 m² pour plus de praticité.
Un espace de rangement et un garage intégré :
• Un cellier de 6,63 m², parfait pour la buanderie et le rangement.
• Un garage de 19,25 m², pratique pour le stationnement ou le stockage.
Les atouts du modèle 120 L 4 :
• 4 chambres spacieuses, adaptées aux besoins des familles nombreuses.
• Grande pièce de vie lumineuse, parfaite pour partager des moments conviviaux.
• Double salle de bain, offrant confort et facilité au quotidien.
• Garage intégré et cellier pour un maximum de rangement et de praticité.
• Extérieur accessible, grâce à ses baies vitrées ouvrant sur une terrasse et un jardin.
• Plan en L, permettant une séparation optimale des espaces jour et nuit.
Le modèle 120 L 4 est une maison conçue pour offrir à la fois espace, confort et modernité, répondant ainsi aux attentes des familles en quête d’un cadre de vie harmonieux.



