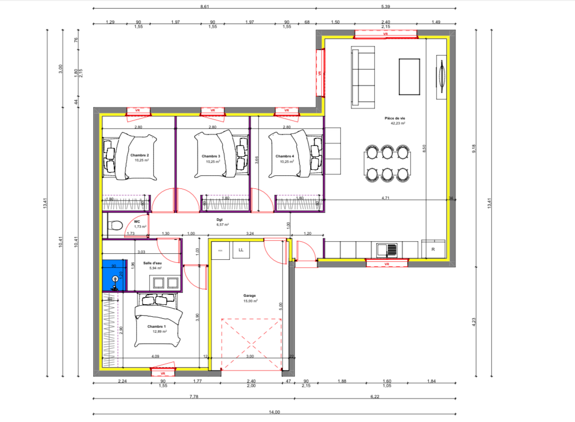
Modèle 100 Z 4 – La maison familiale par excellence

Le modèle 100 Z 4 est une maison de plain-pied de 100 m², parfaite pour les familles. Avec ses 4 chambres, son grand espace de vie lumineux de 42 m², et son garage intégré, elle allie confort et fonctionnalité. Sa disposition en forme de Z permet une séparation intelligente entre les espaces jour et nuit, tout en offrant une grande ouverture sur l’extérieur grâce à ses nombreuses baies vitrées. Moderne, spacieuse et pratique, cette maison s’adapte à vos besoins et à votre mode de vie.

Descriptif du plan
• Superficie habitable : 100 m²
Nombre de chambres : 4
• Chambre 1 : 12,89 m², idéale pour une suite parentale.
• Chambres 2, 3 et 4 : 10,25 m² chacune, parfaites pour les enfants ou les invités.
Espace de vie :
• Une pièce de vie lumineuse de 42,23 m² comprenant un salon, une salle à manger et une cuisine ouverte.
• Accès direct à une terrasse extérieure et au jardin grâce aux grandes baies vitrées.
• Salle d’eau et WC :
• Une salle d’eau moderne de 5,34 m² équipée d’une douche et d’un meuble vasque.
• Un WC indépendant pour plus de confort.
Garage intégré : 15 m², avec accès direct à la maison, offrant un espace pour un véhicule ou des rangements.
Les atouts du modèle 100 Z 4 :
• 4 chambres pour répondre aux besoins des familles nombreuses.
• Grande pièce de vie favorisant la convivialité et la luminosité.
• Garage intégré pratique et fonctionnel.
• Maison moderne et personnalisable selon vos envies.
• Accès extérieur direct pour profiter de votre jardin et terrasse.
Avec son design en Z et ses volumes bien répartis, ce modèle est idéal pour une vie de famille épanouie dans un cadre contemporain et chaleureux.



