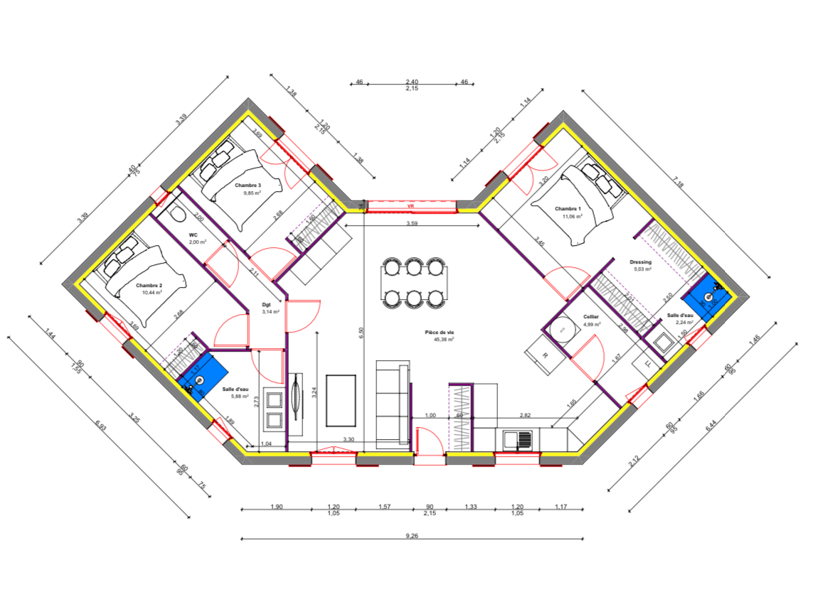
Modèle 100 V 3 – Une maison lumineuse et élégante

Le modèle 100 V 3 est une maison de plain-pied de 100 m², conçue pour offrir confort et modernité à ses occupants. Avec sa forme en V, cette maison optimise les espaces intérieurs et extérieurs tout en permettant une séparation fonctionnelle entre les espaces jour et nuit.

Description des espaces :
Une pièce de vie spacieuse et lumineuse :
La pièce de vie de 45,33 m² se distingue par sa grande luminosité grâce aux larges baies vitrées ouvrant sur la terrasse. Cet espace réunit un salon, une salle à manger et une cuisine ouverte, favorisant la convivialité.
Trois chambres bien agencées :
• Chambre parentale (11,06 m²) avec un dressing de 5,53 m² et une salle d’eau privative de 2,84 m².
• Deux autres chambres (10,44 m² et 9,85 m²), idéales pour les enfants ou les invités, disposant de rangements intégrés.
Sanitaires et rangement :
• Une salle d’eau principale de 5,88 m² avec douche et vasque.
• Un WC séparé de 2,00 m².
• Un cellier de 4,99 m², pratique pour le rangement et la buanderie.
Avec son architecture élégante et ses espaces lumineux, le modèle 100 V 3 s’impose comme un choix parfait pour les familles cherchant à allier modernité et praticité dans un cadre chaleureux.
Les atouts du modèle 100 V 3 :
• Design en V : optimise l’intimité des espaces nuit tout en valorisant la vue sur l’extérieur.
• Grande pièce de vie : 45,33 m², idéale pour les moments en famille ou entre amis.
• Suite parentale : avec dressing et salle d’eau privative.
• Extérieur aménagé : terrasse accessible depuis plusieurs pièces pour profiter pleinement du jardin.
• Fonctionnalité : des espaces bien pensés et optimisés pour un confort au quotidien.



