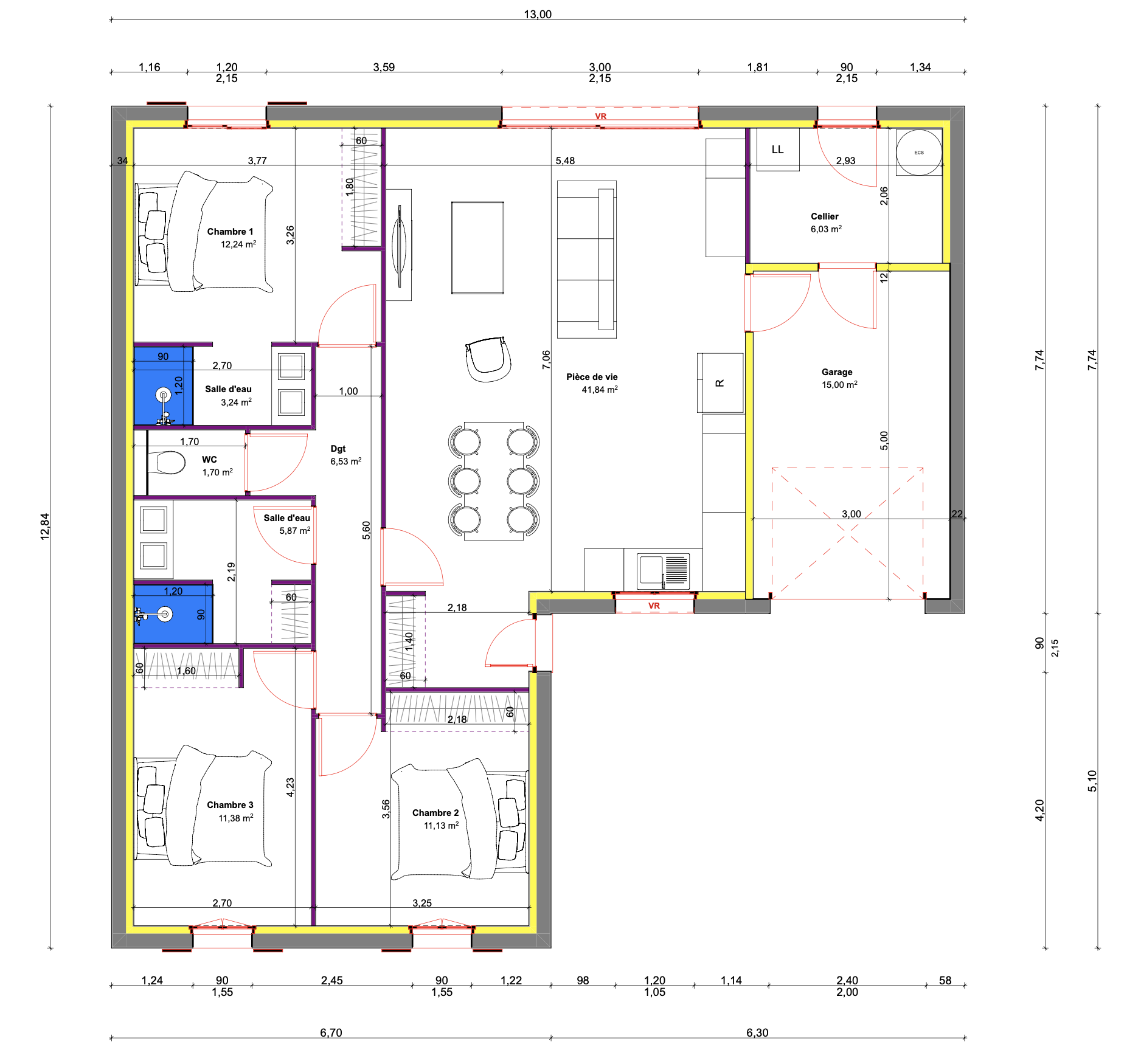
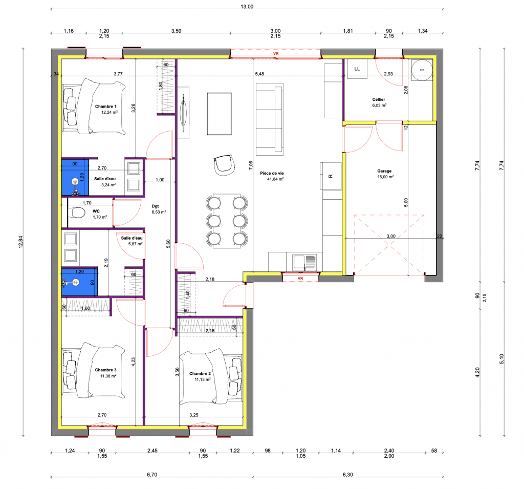
Modèle 100 L 3 – Une maison lumineuse et fonctionnelle

Le modèle 100 L 3 propose une surface habitable de 100 m², pensée pour répondre aux besoins des familles grâce à son agencement intelligent et ses espaces lumineux. Avec ses 3 chambres, ses deux salles d’eau et son garage intégré, cette maison allie modernité, confort et praticité.

Description des espaces :
Une pièce de vie spacieuse et lumineuse :
La pièce de vie de 41,84 m² regroupe un salon, une salle à manger et une cuisine ouverte. Grâce à ses grandes baies vitrées, elle offre une luminosité naturelle exceptionnelle et un accès direct à la terrasse et au jardin.
Un espace nuit bien organisé :
3 chambres confortables :
• Chambre 1 : 12,24 m², idéale comme suite parentale avec sa salle d’eau de 3,24 m² pour plus de praticité au quotidien.
• Chambres 2 et 3 : respectivement 11,13 m² et 11,38 m², parfaites pour les enfants ou un bureau.
• Une salle d’eau principale de 5,87 m² avec douche et double vasque.
• Un WC indépendant de 1,70 m² pour un confort supplémentaire.
Un espace de rangement et un garage intégré :
• Un cellier de 6,03 m², attenant à la cuisine, parfait pour le rangement ou la buanderie.
• Un garage de 15 m², accessible directement depuis la maison, offrant un espace pratique pour un véhicule ou du stockage.
Les atouts du modèle 100 L 3 :
• 3 chambres spacieuses pour s’adapter aux besoins des familles.
• Grande pièce de vie lumineuse, conviviale et fonctionnelle.
• Double salle d’eau, idéale pour le confort au quotidien.
• Garage intégré et cellier, pratiques pour le rangement.
• Accès extérieur : des baies vitrées donnant directement sur une terrasse et un jardin.
Le modèle 100 L 3 est une maison moderne et chaleureuse, parfaite pour les familles en quête d’un cadre de vie pratique et agréable.



