Modèle 100 C 4 – La maison familiale pratique et moderne

Le modèle 100 C 4 séduit par son design épuré et ses lignes modernes. Avec son garage intégré et ses volets battants, il allie praticité et esthétique pour une façade harmonieuse et accueillante.

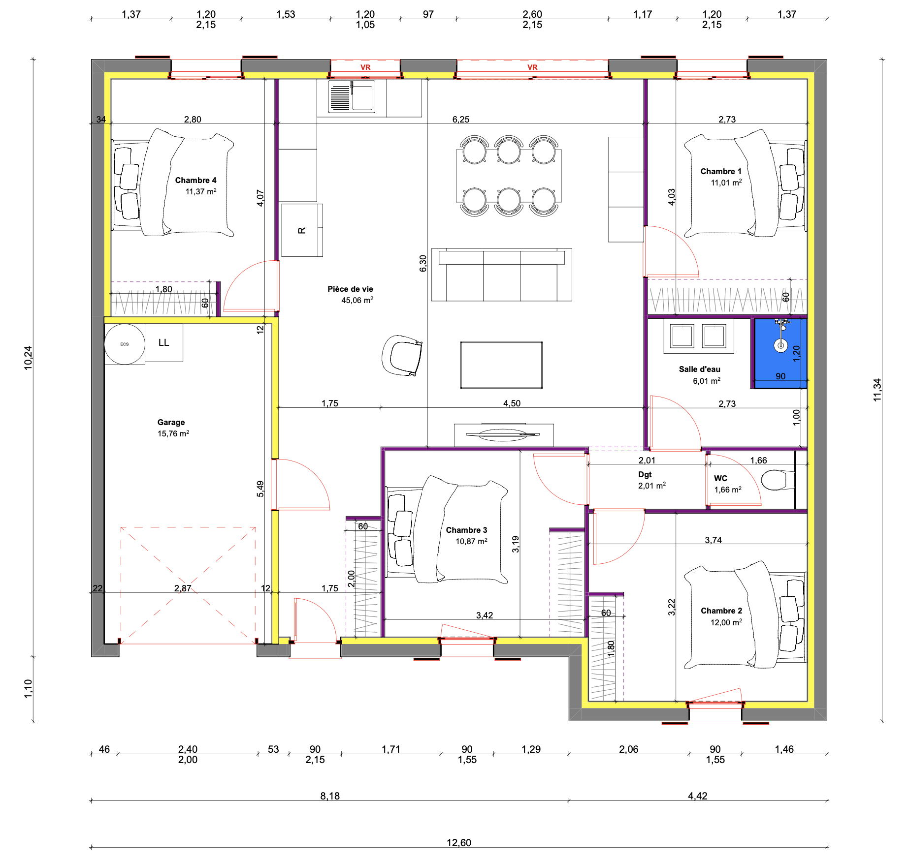
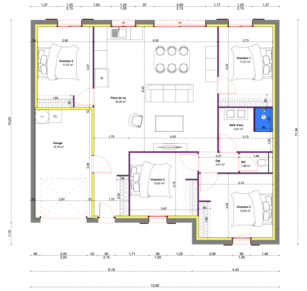
Description détaillée pour le plan
Le modèle 100 C 4 propose une maison fonctionnelle de plain-pied, comprenant :
• Une pièce de vie de 45 m², spacieuse et lumineuse grâce à ses baies vitrées ouvrant sur l’extérieur.
• 4 chambres bien agencées, offrant confort et intimité, avec des surfaces comprises entre 10 et 12 m².
• Une salle d’eau équipée d’une douche et d’un WC indépendant pour plus de praticité.
• Un garage intégré de 15,76 m², accessible directement depuis l’intérieur, parfait pour stationner ou stocker.
Son agencement optimise les espaces tout en créant une séparation claire entre les parties jour et nuit, garantissant un confort de vie au quotidien.
Les atouts du modèle 100 C 4 :
• 4 chambres adaptées à tous les besoins : famille nombreuse, bureau ou chambre d’amis.
• Une grande pièce de vie lumineuse et conviviale avec accès direct à la terrasse.
• Garage intégré, idéal pour sécuriser un véhicule ou créer un espace de rangement.
• Design moderne, parfait pour s’intégrer dans tous les environnements.
• Plan optimisé, assurant une circulation fluide et des espaces bien définis.
Le modèle 100 R 3 est une maison fonctionnelle et moderne, offrant des espaces bien agencés et lumineux, parfaits pour une vie familiale agréable.



